物件ID:196525
情報公開日:2026年03月25日
情報更新日:2026年03月25日
立地
-
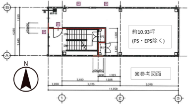
住所 東京都墨田区錦糸三丁目4-1 建物名/所在階 バイリンクビル錦糸町駅前/2階 最寄駅 JR中央・総武線錦糸町駅
徒歩1分近隣駅1 ー 近隣駅2 ー
費用/契約
-
造作価格 ー 賃料(坪単価) 572,000円(52,333円) 管理費/共益費(坪単価) ー(ー) 保証金/敷金 0ヶ月 / 2ヶ月 償却 ご相談 礼金 2ヶ月 更新料/再契約料 ご相談 その他費用 初回保証料:月額総賃料の100% 仲介手数料 1ヶ月 その他手数料 ー 契約期間 10年 契約種別 普通賃貸借
用途
-
物件の現況 ー 可能用途 ご相談 坪数 10.93坪
- 備考



















