物件ID:196161
情報公開日:2026年03月23日
情報更新日:2026年03月29日
立地
-
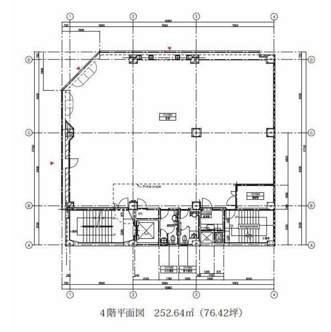
住所 東京都豊島区西池袋一丁目18-6 建物名/所在階 藤久ビル西2号館/4階 最寄駅 JR山手線池袋駅
徒歩4分近隣駅1 JR湘南新宿ライン池袋駅
徒歩4分近隣駅2 JR埼京線池袋駅
徒歩4分
費用/契約
-
造作価格 ー 賃料(坪単価) 1,260,000円(16,487円) 管理費/共益費(坪単価) 420,310円(5,499円) 保証金/敷金 0ヶ月 / 11,463,000 償却 0% 礼金 0ヶ月 更新料/再契約料 ー その他費用 ー 仲介手数料 1ヶ月 その他手数料 ー 契約期間 2年 契約種別
用途
-
物件の現況 ー 可能用途 指定あり 坪数 76.42坪
- 備考



















