物件ID:194142
情報公開日:2026年03月05日
情報更新日:2026年03月07日
立地
-
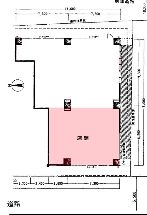
住所 神奈川県横浜市戸塚区品濃町538-3 建物名/所在階 朝日プラザ東戸塚 1階 101B /1階 最寄駅 JR横須賀線東戸塚駅
徒歩2分近隣駅1 JR湘南新宿ライン東戸塚駅
徒歩2分近隣駅2 ー
費用/契約
-
造作価格 ー 賃料(坪単価) 501,600円(20,899円) 管理費/共益費(坪単価) 37,400円(1,558円) 保証金/敷金 10ヶ月 / ー 償却 ご相談 礼金 1ヶ月 更新料/再契約料 ー その他費用 ·火災保険要加入 仲介手数料 1ヶ月 その他手数料 ー 契約期間 3年 契約種別
用途
-
物件の現況 ー 可能用途 指定あり 坪数 24.00坪
- 備考






















