物件ID:193920
情報公開日:2026年03月04日
情報更新日:2026年03月04日
立地
-
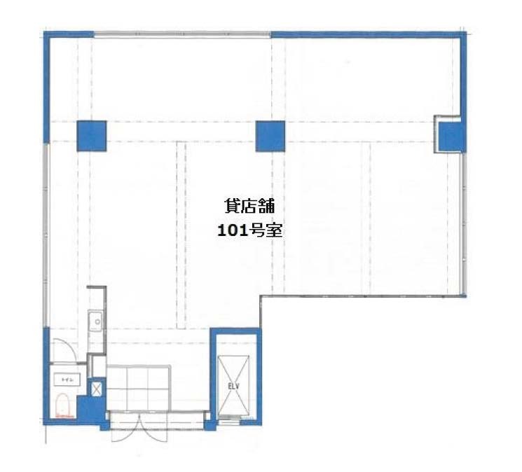
住所 神奈川県横浜市南区二葉町二丁目17-19 建物名/所在階 ライオンズマンション吉野町第7/1階 最寄駅 ブルーライン吉野町駅
徒歩3分近隣駅1 ー 近隣駅2 ー
費用/契約
-
造作価格 ー 賃料(坪単価) 250,635円(8,520円) 管理費/共益費(坪単価) 81,050円(2,755円) 保証金/敷金 4ヶ月 / 0ヶ月 償却 2ヶ月 礼金 0ヶ月 更新料/再契約料 ー その他費用 ー 仲介手数料 1ヶ月 その他手数料 ー 契約期間 2年 契約種別
用途
-
物件の現況 ー 可能用途 指定あり 坪数 29.42坪
- 備考



















