物件ID:193881
情報公開日:2026年03月04日
情報更新日:2026年04月03日
立地
-
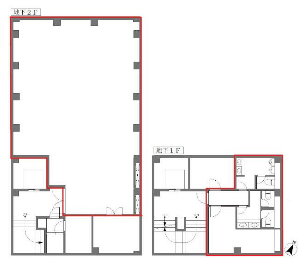
住所 神奈川県横浜市港北区日吉本町一丁目17-3 建物名/所在階 地下2~-1階 最寄駅 東急東横線日吉駅
徒歩5分近隣駅1 ー 近隣駅2 ー
費用/契約
-
造作価格 ー 賃料(坪単価) 719,400円(15,400円) 管理費/共益費(坪単価) 44,000円(941円) 保証金/敷金 4ヶ月 / ー 償却 0% 礼金 1ヶ月 更新料/再契約料 1ヶ月 その他費用 ー 仲介手数料 1ヶ月 その他手数料 ー 契約期間 3年 契約種別
用途
-
物件の現況 サービス(その他) 可能用途 指定あり 坪数 46.71坪
- 備考
- 保証会社加入必須 保険加入必須


























