物件ID:193828
情報公開日:2026年03月04日
情報更新日:2026年03月04日
立地
-
住所 東京都新宿区高田馬場三丁目12-6 建物名/所在階 日拓高田馬場ビル2/地下1階 最寄駅 JR山手線高田馬場駅
徒歩3分近隣駅1 西武新宿線高田馬場駅
徒歩3分近隣駅2 東京メトロ東西線高田馬場駅
徒歩3分
費用/契約
-
造作価格 ー 賃料(坪単価) 1,820,000円(19,782円) 管理費/共益費(坪単価) 272,800円(2,965円) 保証金/敷金 0ヶ月 / 12ヶ月 償却 0% 礼金 1ヶ月 更新料/再契約料 1ヶ月 その他費用 ー 仲介手数料 1ヶ月 その他手数料 ー 契約期間 5年 契約種別 普通賃貸借
用途
-
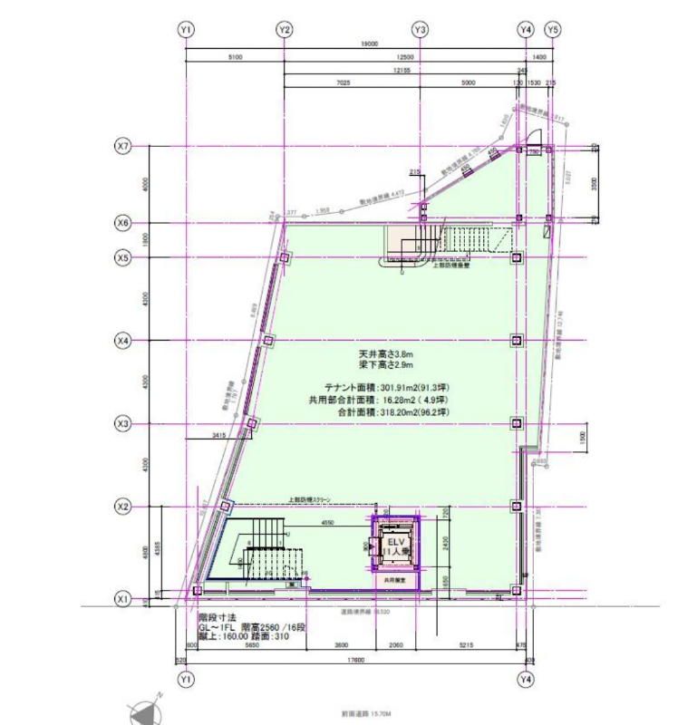
物件の現況 ー 可能用途 指定あり 坪数 92.00坪
- 備考
- テナント面積:301.91m2 (91.3坪)
共用部合計面積:16.28m2 (4.9坪)






















