物件ID:193593
情報公開日:2026年03月02日
情報更新日:2026年03月02日
立地
-
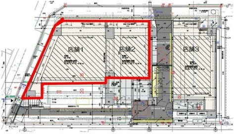
住所 神奈川県横浜市中区吉田町5-12 建物名/所在階 LUMIEC KANNAI Ⅱ 店舗1・2/1階 最寄駅 JR根岸線関内駅
徒歩5分近隣駅1 ー 近隣駅2 ー
費用/契約
-
造作価格 ー 賃料(坪単価) 791,100円(32,991円) 管理費/共益費(坪単価) ー(ー) 保証金/敷金 0ヶ月 / 3ヶ月 償却 0% 礼金 0ヶ月 更新料/再契約料 ー その他費用 保険等加入:加入要、賃貸保証:加入要 仲介手数料 1ヶ月 その他手数料 ー 契約期間 5年 契約種別 普通賃貸借
用途
-
物件の現況 ー 可能用途 指定あり 坪数 23.98坪
- 備考



















