物件ID:192757
情報公開日:2026年02月27日
情報更新日:2026年02月27日
立地
-
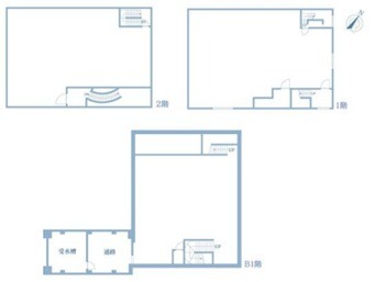
住所 東京都武蔵野市吉祥寺本町一丁目8-20 建物名/所在階 KKビル/地下1~2階 最寄駅 JR中央線(快速)吉祥寺駅
徒歩3分近隣駅1 ー 近隣駅2 ー
費用/契約
-
造作価格 ー 賃料(坪単価) 6,600,000円(26,848円) 管理費/共益費(坪単価) ー(ー) 保証金/敷金 0ヶ月 / 11ヶ月 償却 1ヶ月 礼金 1ヶ月 更新料/再契約料 1ヶ月 その他費用 保険等加入:加入要、賃貸保証:加入要 仲介手数料 1ヶ月 その他手数料 ー 契約期間 10年 契約種別 普通賃貸借
用途
-
物件の現況 ー 可能用途 何業も可 坪数 245.83坪
- 備考
- ・2023年12月末 耐震・外壁・配管工事完了



















