物件ID:191508
情報公開日:2026年02月13日
情報更新日:2026年02月13日
立地
-
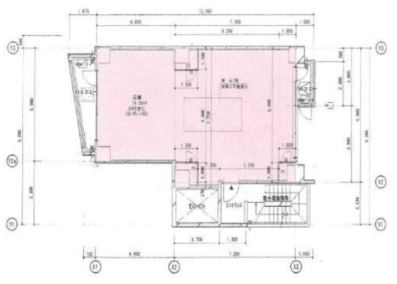
住所 東京都杉並区阿佐谷南一丁目35-10 建物名/所在階 2階 最寄駅 JR中央線(快速)阿佐ケ谷駅
徒歩4分近隣駅1 ー 近隣駅2 ー
費用/契約
-
造作価格 ー 賃料(坪単価) 866,000円(36,238円) 管理費/共益費(坪単価) ー(ー) 保証金/敷金 8ヶ月 / ー 償却 ご相談 礼金 1ヶ月 更新料/再契約料 ー その他費用 ー 仲介手数料 1ヶ月 その他手数料 ー 契約期間 3年 契約種別 普通賃貸借
用途
-
物件の現況 ー 可能用途 指定あり 坪数 23.90坪
- 備考
- 業態によりダクトを屋上まで設置必須



















