物件ID:190843
情報公開日:2026年02月07日
情報更新日:2026年02月24日
立地
-
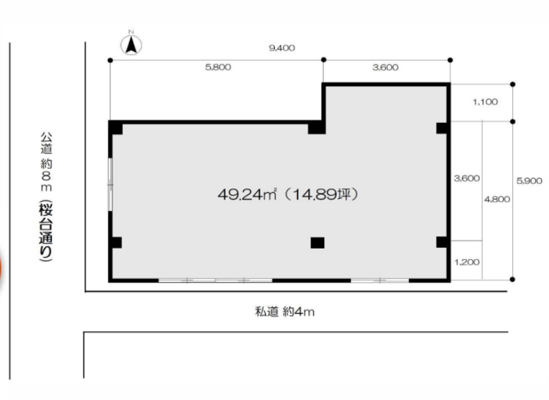
住所 東京都練馬区桜台一丁目5-4 建物名/所在階 Sera.U桜台駅前/1階 最寄駅 西武池袋線桜台駅
徒歩1分近隣駅1 ー 近隣駅2 ー
費用/契約
-
造作価格 ー 賃料(坪単価) 297,000円(19,939円) 管理費/共益費(坪単価) ー(ー) 保証金/敷金 ー / 3ヶ月 償却 0ヶ月 礼金 1ヶ月 更新料/再契約料 1ヶ月 その他費用 ー 仲介手数料 1ヶ月 その他手数料 ー 契約期間 2年 契約種別
用途
-
物件の現況 ー 可能用途 指定あり 坪数 14.90坪
- 備考



















