物件ID:190328
情報公開日:2026年02月04日
情報更新日:2026年02月04日
立地
-
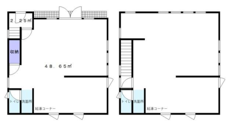
住所 東京都荒川区東尾久四丁目13-10 建物名/所在階 Eastup935./1~2階 最寄駅 日暮里・舎人ライナー赤土小学校前駅
徒歩4分近隣駅1 ー 近隣駅2 ー
費用/契約
-
造作価格 ー 賃料(坪単価) 425,000円(13,520円) 管理費/共益費(坪単価) 11,000円(349円) 保証金/敷金 ー / 6ヶ月 償却 0% 礼金 1ヶ月 更新料/再契約料 ー その他費用 ー 仲介手数料 1ヶ月 その他手数料 ー 契約期間 3年 契約種別
用途
-
物件の現況 ー 可能用途 指定あり 坪数 31.43坪
- 備考
- 1Fと2Fを併せて借りることも可能
軽飲食以外の飲食店は不可!短期契約解約時違約金があります。
現況は学習塾が盛業中です!内装はスケルトンの予定!

























