物件ID:189999
情報公開日:2026年02月02日
情報更新日:2026年04月01日
立地
-
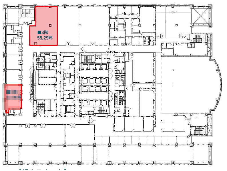
住所 神奈川県横浜市西区みなとみらい三丁目3-1 建物名/所在階 3階 最寄駅 みなとみらい線みなとみらい駅
徒歩4分近隣駅1 ー 近隣駅2 ー
費用/契約
-
造作価格 ー 賃料(坪単価) ご相談(0円) 管理費/共益費(坪単価) ー(ー) 保証金/敷金 12ヶ月 / ー 償却 0% 礼金 0ヶ月 更新料/再契約料 ー その他費用 ー 仲介手数料 1ヶ月 その他手数料 ー 契約期間 ー 契約種別
用途
-
物件の現況 ー 可能用途 指定あり 坪数 55.29坪
- 備考
- 保証会社加入必須 保険加入必須



















