物件ID:185619
情報公開日:2025年12月22日
情報更新日:2026年03月16日
立地
-
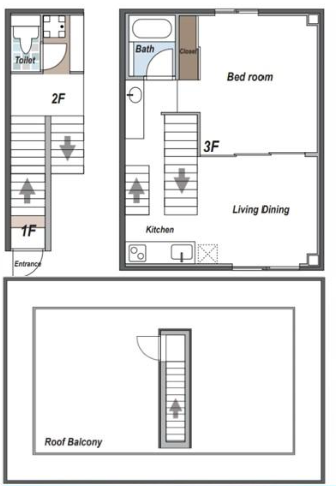
住所 東京都中央区勝どき四丁目11-10 建物名/所在階 レジデンス勝どき 2F-3F C号室/2~3階 最寄駅 都営大江戸線勝どき駅
徒歩3分近隣駅1 ー 近隣駅2 ー
費用/契約
-
造作価格 ー 賃料(坪単価) 308,000円(19,621円) 管理費/共益費(坪単価) 24,000円(1,681円) 保証金/敷金 ー / 3ヶ月 償却 ご相談 礼金 0ヶ月 更新料/再契約料 ー その他費用 電気水道ガス20000円(税込)等 仲介手数料 1ヶ月 その他手数料 ー 契約期間 3年 契約種別 普通賃貸借
用途
-
物件の現況 サービス(その他) 可能用途 指定あり 坪数 15.70坪
- 備考




















