物件ID:183491
情報公開日:2025年12月04日
情報更新日:2026年03月03日
立地
-
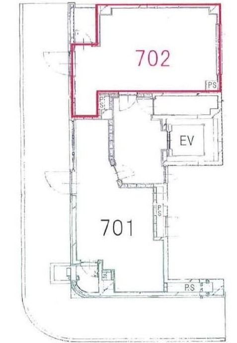
住所 神奈川県横浜市中区南仲通二丁目25-1 建物名/所在階 横浜エクセレントⅫビル1階702/7階 最寄駅 JR根岸線関内駅
徒歩5分近隣駅1 ー 近隣駅2 ー
費用/契約
-
造作価格 ー 賃料(坪単価) 244,596円(18,699円) 管理費/共益費(坪単価) 50,358円(3,849円) 保証金/敷金 1,400,000 / ー 償却 38% 礼金 1ヶ月 更新料/再契約料 ー その他費用 看板料11000円 機械整備料11000円 各月額 仲介手数料 1ヶ月 その他手数料 ー 契約期間 3年 契約種別 普通賃貸借
用途
-
物件の現況 ー 可能用途 指定あり 坪数 13.08坪
- 備考



















