物件ID:181390
情報公開日:2025年11月18日
情報更新日:2026年02月17日
立地
-
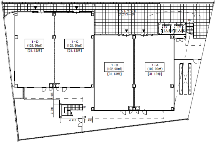
住所 埼玉県川越市中原町二丁目25-2 建物名/所在階 1階 最寄駅 西武新宿線本川越駅
徒歩1分近隣駅1 ー 近隣駅2 ー
費用/契約
-
造作価格 ー 賃料(坪単価) ご相談(0円) 管理費/共益費(坪単価) ー(ー) 保証金/敷金 ー / 12ヶ月 償却 0% 礼金 0ヶ月 更新料/再契約料 ー その他費用 ー 仲介手数料 1ヶ月 その他手数料 ー 契約期間 ー 契約種別 普通賃貸借
用途
-
物件の現況 ー 可能用途 指定あり 坪数 31.13坪
- 備考
- 保証会社加入必須 保険加入必須



















