物件ID:180725
情報公開日:2025年11月13日
情報更新日:2026年04月02日
立地
-
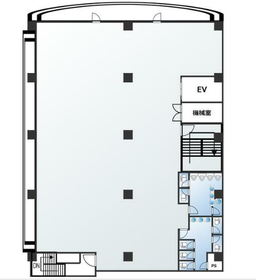
住所 神奈川県藤沢市鵠沼石上一丁目5-14 建物名/所在階 第⼆相澤ビル/1~4階 最寄駅 JR東海道本線(東京~熱海)藤沢駅
徒歩6分近隣駅1 ー 近隣駅2 ー
費用/契約
-
造作価格 ご相談 賃料(坪単価) 3,500,000円(9,957円) 管理費/共益費(坪単価) ー(ー) 保証金/敷金 10ヶ月 / 0ヶ月 償却 10% 礼金 1ヶ月 更新料/再契約料 1ヶ月 その他費用 保証会社・火災保険加入要 仲介手数料 1ヶ月 その他手数料 ー 契約期間 10年 契約種別
用途
-
物件の現況 サービス(その他) 可能用途 指定あり 坪数 351.48坪
- 備考
- エアコン・トイレは残置物
ビルトインエアコン 電動シャッター有



























