物件ID:178816
情報公開日:2026年03月31日
情報更新日:2026年04月01日
立地
-
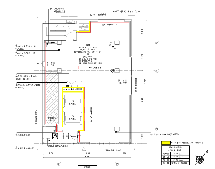
住所 東京都中央区銀座六丁目13 建物名/所在階 (仮称)銀座6丁目商業プロジェクト/7階 最寄駅 東京メトロ銀座線銀座駅
徒歩6分近隣駅1 ー 近隣駅2 ー
費用/契約
-
造作価格 ー 賃料(坪単価) ご相談(0円) 管理費/共益費(坪単価) ご相談(ご相談) 保証金/敷金 ご相談 / ー 償却 ご相談 礼金 ご相談 更新料/再契約料 ー その他費用 保証会社・火災保険加入要 仲介手数料 1ヶ月 その他手数料 ー 契約期間 ー 契約種別
用途
-
物件の現況 ー 可能用途 指定あり 坪数 31.71坪
- 備考
- サービス店舗可 全フロアガスあり エレベーターあり
番地末尾未定
2026年秋開業予定



















