物件ID:177820
情報公開日:2026年01月24日
情報更新日:2026年04月22日
立地
-
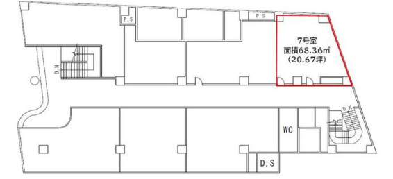
住所 神奈川県茅ヶ崎市幸町2-18 建物名/所在階 武藤ビル 2F7号室 茅ケ崎/2階 最寄駅 JR東海道本線(東京~熱海)茅ケ崎駅
徒歩1分近隣駅1 ー 近隣駅2 ー
費用/契約
-
造作価格 ー 賃料(坪単価) 295,581円(14,293円) 管理費/共益費(坪単価) 56,842円(2,748円) 保証金/敷金 10ヶ月 / ー 償却 ご相談 礼金 1ヶ月 更新料/再契約料 ー その他費用 ー 仲介手数料 1ヶ月 その他手数料 ー 契約期間 10年 契約種別
用途
-
物件の現況 ー 可能用途 指定あり 坪数 20.68坪
- 備考




















