物件ID:177302
情報公開日:2025年10月17日
情報更新日:2026年04月24日
立地
-
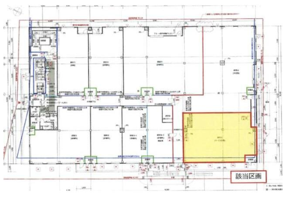
住所 神奈川県横浜市南区井土ケ谷中町158-4 建物名/所在階 3階 最寄駅 京急本線井土ヶ谷駅
徒歩1分近隣駅1 ー 近隣駅2 ー
費用/契約
-
造作価格 ー 賃料(坪単価) 851,400円(14,299円) 管理費/共益費(坪単価) ー(ー) 保証金/敷金 ー / 6ヶ月 償却 0% 礼金 0ヶ月 更新料/再契約料 ー その他費用 ー 仲介手数料 1ヶ月 その他手数料 ー 契約期間 5年 契約種別 普通賃貸借
用途
-
物件の現況 ー 可能用途 指定あり 坪数 59.54坪
- 備考
- 保証会社加入必須 保険加入必須





















