物件ID:177142
情報公開日:2025年10月16日
情報更新日:2026年04月03日
立地
-
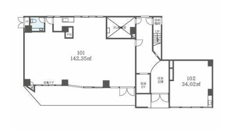
住所 神奈川県横浜市南区井土ケ谷下町16 建物名/所在階 1階 最寄駅 ブルーライン蒔田駅
徒歩8分近隣駅1 ー 近隣駅2 ー
費用/契約
-
造作価格 ー 賃料(坪単価) 528,600円(12,275円) 管理費/共益費(坪単価) 33,000円(766円) 保証金/敷金 3ヶ月 / ー 償却 0% 礼金 2ヶ月 更新料/再契約料 1ヶ月 その他費用 ー 仲介手数料 1ヶ月 その他手数料 ー 契約期間 2年 契約種別
用途
-
物件の現況 サービス(その他) 可能用途 指定あり 坪数 43.06坪
- 備考
- 保証会社加入必須 保険加入必須




















