物件ID:171273
情報公開日:2025年08月29日
情報更新日:2026年02月27日
立地
-
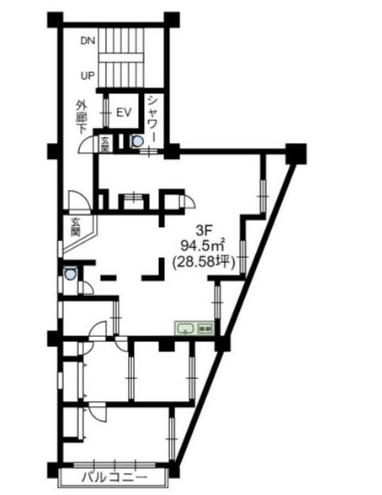
住所 神奈川県川崎市中原区新丸子町767 建物名/所在階 セピアハイム/3階 最寄駅 東急東横線新丸子駅
徒歩3分近隣駅1 ー 近隣駅2 ー
費用/契約
-
造作価格 ご相談 賃料(坪単価) 660,000円(23,093円) 管理費/共益費(坪単価) ー(ー) 保証金/敷金 6ヶ月 / ー 償却 20% 礼金 2ヶ月 更新料/再契約料 ー その他費用 指定保証会社・火災保険加入要 仲介手数料 1ヶ月 その他手数料 ー 契約期間 5年 契約種別 普通賃貸借
用途
-
物件の現況 エステ・マッサージ・サロン 可能用途 指定あり 坪数 28.58坪
- 備考
- 前テナント:整骨院 飲食店相談可
エレベーター

























