物件ID:168650
情報公開日:2025年08月04日
情報更新日:2026年03月18日
立地
-
住所 東京都渋谷区代官山町20-17 建物名/所在階 地下1階 最寄駅 東急東横線代官山駅
徒歩1分近隣駅1 ー 近隣駅2 ー
費用/契約
-
造作価格 ー 賃料(坪単価) ご相談(0円) 管理費/共益費(坪単価) ー(ー) 保証金/敷金 ー / 12ヶ月 償却 0% 礼金 0ヶ月 更新料/再契約料 ー その他費用 ー 仲介手数料 1ヶ月 その他手数料 ー 契約期間 5年 契約種別
用途
-
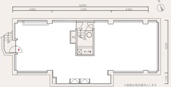
物件の現況 ー 可能用途 ご相談 坪数 34.23坪
- 備考
- 保証会社加入必須 保険加入必須



















