物件ID:168072
情報公開日:2025年07月29日
情報更新日:2026年04月13日
立地
-
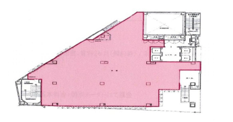
住所 神奈川県横浜市戸塚区品濃町516-5 建物名/所在階 パラダイスガーデンビル/2階 最寄駅 JR横須賀線東戸塚駅
徒歩1分近隣駅1 ー 近隣駅2 ー
費用/契約
-
造作価格 ー 賃料(坪単価) 2,742,542円(61,818円) 管理費/共益費(坪単価) ー(ー) 保証金/敷金 10ヶ月 / 0ヶ月 償却 2ヶ月 礼金 0ヶ月 更新料/再契約料 ー その他費用 ー 仲介手数料 1ヶ月 その他手数料 ー 契約期間 5年 契約種別
用途
-
物件の現況 ー 可能用途 何業も可 坪数 44.36坪
- 備考
- 24時間営業可能(有人のみ)
2階のみ直通階段があり



















