物件ID:165536
情報公開日:2025年07月07日
情報更新日:2026年03月16日
立地
-
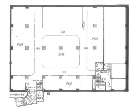
住所 神奈川県平塚市紅谷町8-16 建物名/所在階 サニープラザ平塚/地下1階 最寄駅 JR東海道本線(東京~熱海)平塚駅
徒歩1分近隣駅1 ー 近隣駅2 ー
費用/契約
-
造作価格 ー 賃料(坪単価) 1,100,000円(5,192円) 管理費/共益費(坪単価) ー(ー) 保証金/敷金 10ヶ月 / ー 償却 20% 礼金 1ヶ月 更新料/再契約料 1ヶ月 その他費用 商店会費:15,000円/⽉ 保険加入要 仲介手数料 1ヶ月 その他手数料 ー 契約期間 3年 契約種別
用途
-
物件の現況 ー 可能用途 指定あり 坪数 211.85坪
- 備考
- 前テナント業種:カラオケ
エレベーター



















