物件ID:163629
情報公開日:2025年06月20日
情報更新日:2026年03月02日
立地
-
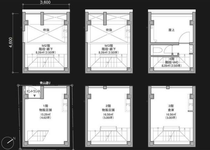
住所 東京都港区南青山三丁目12-11 建物名/所在階 ARA南青山プレイス/1~4階 最寄駅 東京メトロ銀座線表参道駅
徒歩3分近隣駅1 東京メトロ銀座線外苑前駅
徒歩9分近隣駅2 東京メトロ副都心線明治神宮前〈原宿〉駅
徒歩12分
費用/契約
-
造作価格 ー 賃料(坪単価) 1,815,000円(81,911円) 管理費/共益費(坪単価) ご相談(ご相談) 保証金/敷金 ご相談 / 8ヶ月 償却 ご相談 礼金 ご相談 更新料/再契約料 ー その他費用 ー 仲介手数料 1ヶ月 その他手数料 ー 契約期間 5年 契約種別 普通賃貸借
用途
-
物件の現況 ー 可能用途 指定あり 坪数 22.16坪
- 備考
- 業態につきましてはお気軽にスタッフまでお申し付けくださいませ。
表参道駅すぐの好立地物件です。
一括貸しでのご案内になります。






















