物件ID:163543
情報公開日:2025年06月20日
情報更新日:2026年02月12日
立地
-
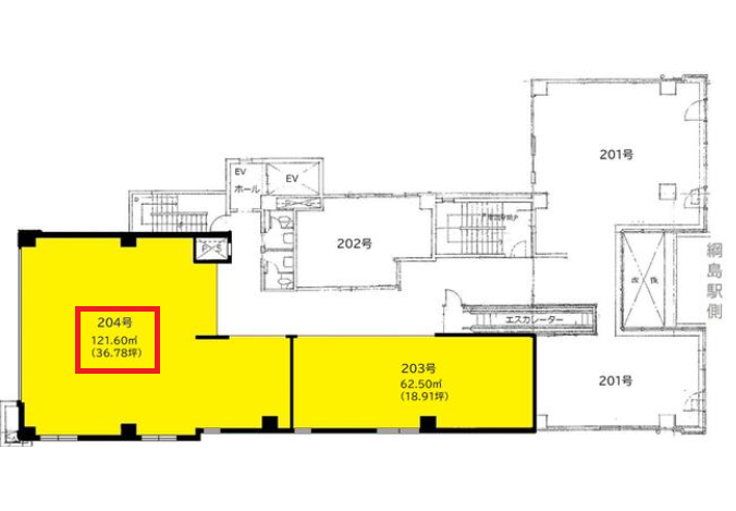
住所 神奈川県横浜市港北区綱島西一丁目6-19 建物名/所在階 綱島コア15 204号室/2階 最寄駅 東急東横線綱島駅
徒歩1分近隣駅1 ー 近隣駅2 ー
費用/契約
-
造作価格 ー 賃料(坪単価) 606,870円(16,498円) 管理費/共益費(坪単価) 121,374円(3,299円) 保証金/敷金 10ヶ月 / ー 償却 2ヶ月 礼金 1ヶ月 更新料/再契約料 1ヶ月 その他費用 商店会費:5,000円/月 保証会社・保険加入要 仲介手数料 1ヶ月 その他手数料 ー 契約期間 3年 契約種別
用途
-
物件の現況 ー 可能用途 指定あり 坪数 36.78坪
- 備考
- 前テナント:クリニック 共用負担3.94坪含む 共用トイレ
シャッター残置物 営業時間9時~21時まで/入館制限8~22時
正面看板1.1万円/月、西側看板0.33万円/月、設置費用別途負担



























