物件ID:161764
情報公開日:2025年06月06日
情報更新日:2026年02月27日
立地
-
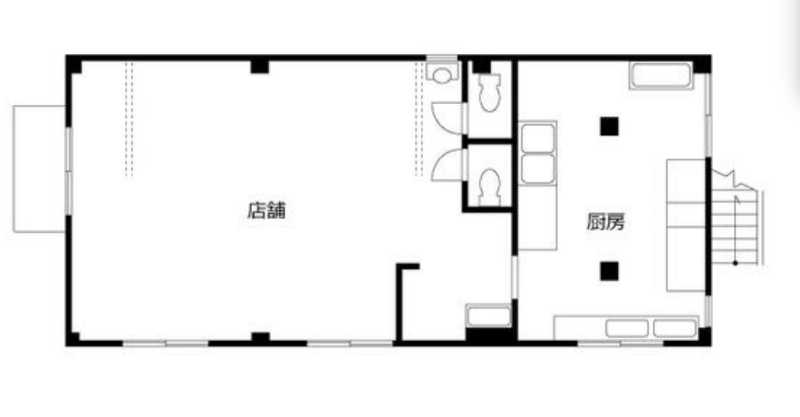
住所 埼玉県富士見市鶴瀬東一丁目9-24 建物名/所在階 鶴瀬東ビル 3-C/3階 最寄駅 東武東上線鶴瀬駅
徒歩1分近隣駅1 ー 近隣駅2 ー
費用/契約
-
造作価格 ー 賃料(坪単価) 269,500円(14,281円) 管理費/共益費(坪単価) ー(ー) 保証金/敷金 10ヶ月 / ー 償却 2ヶ月 礼金 0ヶ月 更新料/再契約料 ー その他費用 ー 仲介手数料 1ヶ月 その他手数料 ー 契約期間 3年 契約種別
用途
-
物件の現況 ー 可能用途 指定あり 坪数 18.87坪
- 備考



















