物件ID:160344
情報公開日:2025年05月27日
情報更新日:2026年02月16日
立地
-
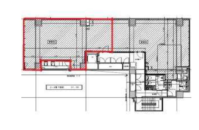
住所 東京都中央区銀座三丁目14-15 建物名/所在階 第二厚生館ビル 8FA /8階 最寄駅 都営浅草線東銀座駅
徒歩2分近隣駅1 東京メトロ日比谷線築地駅
徒歩5分近隣駅2 東京メトロ銀座線銀座駅
徒歩5分
費用/契約
-
造作価格 ー 賃料(坪単価) 1,327,491円(36,300円) 管理費/共益費(坪単価) ー(ー) 保証金/敷金 8ヶ月 / ー 償却 2ヶ月 礼金 0ヶ月 更新料/再契約料 ー その他費用 ー 仲介手数料 1ヶ月 その他手数料 ー 契約期間 2年 契約種別 普通賃貸借
用途
-
物件の現況 サービス(その他) 可能用途 指定あり 坪数 36.57坪
- 備考




















