物件ID:158659
情報公開日:2025年05月12日
情報更新日:2026年04月15日
立地
-
住所 神奈川県川崎市多摩区登戸2636-4 建物名/所在階 新築一括貸店舗/1~2階 最寄駅 JR南武線登戸駅
徒歩3分近隣駅1 小田急線向ヶ丘遊園駅
徒歩3分近隣駅2 ー
費用/契約
-
造作価格 ー 賃料(坪単価) 770,000円(11,056円) 管理費/共益費(坪単価) ー(ー) 保証金/敷金 3ヶ月 / ー 償却 20% 礼金 1ヶ月 更新料/再契約料 1ヶ月 その他費用 ー 仲介手数料 1ヶ月 その他手数料 ー 契約期間 5年 契約種別 普通賃貸借
用途
-
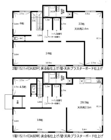
物件の現況 サービス(その他) 可能用途 何業も可 坪数 69.64坪
- 備考
- ☆1棟貸の気象物件です!
☆再開発エリア至近のため商業施設・人口が増えます♪
☆生活利便施設も充実したエリア♪



























