物件ID:157798
情報公開日:2025年05月02日
情報更新日:2026年04月05日
立地
-
住所 東京都渋谷区神宮前二丁目23-2 建物名/所在階 原宿ドレスビル/1~5階 最寄駅 東京メトロ副都心線北参道駅
徒歩9分近隣駅1 JR中央・総武線千駄ケ谷駅
徒歩10分近隣駅2 ー
費用/契約
-
造作価格 ー 賃料(坪単価) 809,600円(21,993円) 管理費/共益費(坪単価) ー(ー) 保証金/敷金 3ヶ月 / ー 償却 1ヶ月 礼金 0ヶ月 更新料/再契約料 1ヶ月 その他費用 保証会社・保険加入要 仲介手数料 1ヶ月 その他手数料 ー 契約期間 2年 契約種別 普通賃貸借
用途
-
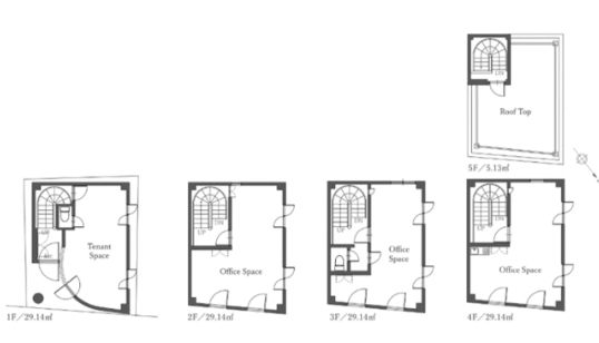
物件の現況 サービス(その他) 可能用途 指定あり 坪数 36.81坪
- 備考
- 24時間利用可 土日祝利用可 ビルトインエアコン

























