物件ID:157412
情報公開日:2025年08月04日
情報更新日:2026年04月20日
立地
-
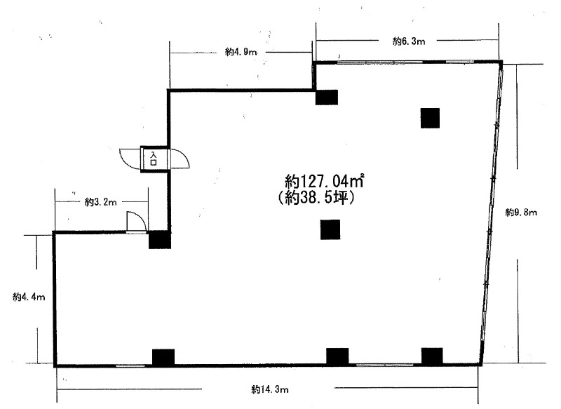
住所 神奈川県横浜市港南区上大岡西一丁目17-26 建物名/所在階 KTMビル/2階 最寄駅 ブルーライン上大岡駅
徒歩2分近隣駅1 京急本線上大岡駅
徒歩3分近隣駅2 ー
費用/契約
-
造作価格 ー 賃料(坪単価) 635,250円(16,500円) 管理費/共益費(坪単価) ー(ー) 保証金/敷金 10ヶ月 / ー 償却 20% 礼金 1ヶ月 更新料/再契約料 1ヶ月 その他費用 ※保証会社要加入 仲介手数料 1ヶ月 その他手数料 ー 契約期間 3年 契約種別
用途
-
物件の現況 ー 可能用途 何業も可 坪数 38.50坪
- 備考
- 軽飲食・物販・サービス・事務所可 24時間営業可
導入:EV一基、共用階段 引渡状態:スケルトン
※保証会社要加入 不可業種、お問い合わせください



















