物件ID:149682
情報公開日:2026年01月06日
情報更新日:2026年03月30日
立地
-
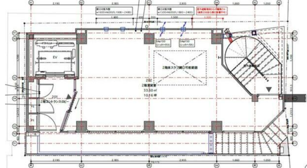
住所 東京都新宿区新宿三丁目35-17 建物名/所在階 F.U.Assets(エフ.ユー.アセッツ) 2F/2階 最寄駅 JR山手線新宿駅
徒歩3分近隣駅1 東京メトロ丸ノ内線新宿三丁目駅
徒歩1分近隣駅2 ー
費用/契約
-
造作価格 ー 賃料(坪単価) 782,300円(76,967円) 管理費/共益費(坪単価) 58,115円(5,717円) 保証金/敷金 12ヶ月 / ー 償却 20% 礼金 1ヶ月 更新料/再契約料 2ヶ月 その他費用 ー 仲介手数料 1ヶ月 その他手数料 ー 契約期間 5年 契約種別 普通賃貸借
用途
-
物件の現況 ー 可能用途 何業も可 坪数 10.16坪
- 備考
- 看板取付スペースあり
24時間利用可、深夜営業可



























