物件ID:145606
情報公開日:2026年03月25日
情報更新日:2026年03月25日
立地
-
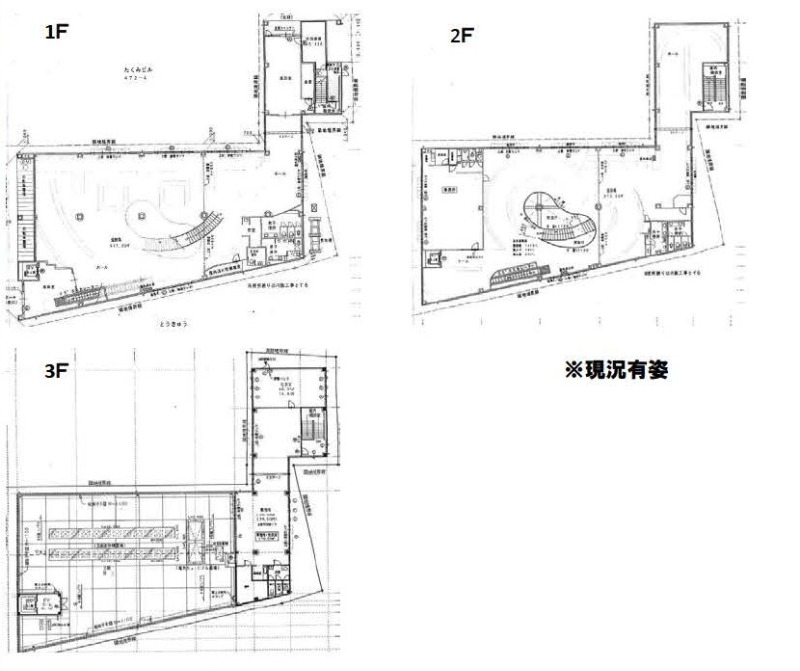
住所 神奈川県伊勢原市桜台一丁目4-31 建物名/所在階 第4濱田ビル/1~3階 最寄駅 小田急線伊勢原駅
徒歩1分近隣駅1 ー 近隣駅2 ー
費用/契約
-
造作価格 ー 賃料(坪単価) 3,300,000円(6,760円) 管理費/共益費(坪単価) ー(ー) 保証金/敷金 4ヶ月 / 0ヶ月 償却 0% 礼金 1ヶ月 更新料/再契約料 1ヶ月 その他費用 ー 仲介手数料 1ヶ月 その他手数料 ー 契約期間 10年 契約種別 普通賃貸借
用途
-
物件の現況 サービス(その他) 可能用途 指定あり 坪数 488.11坪
- 備考



















