物件ID:201107
情報公開日:2026年04月29日
情報更新日:2026年04月29日
立地
-
住所 東京都新宿区西新宿六丁目12-16 建物名/所在階 天空MURA/2階 最寄駅 東京メトロ丸ノ内線西新宿駅
徒歩5分近隣駅1 ー 近隣駅2 ー
費用/契約
-
造作価格 ー 賃料(坪単価) 396,000円(48,919円) 管理費/共益費(坪単価) 22,000円(2,717円) 保証金/敷金 6ヶ月 / ー 償却 ご相談 礼金 1ヶ月 更新料/再契約料 ー その他費用 ー 仲介手数料 1ヶ月 その他手数料 ー 契約期間 2年 契約種別
用途
-
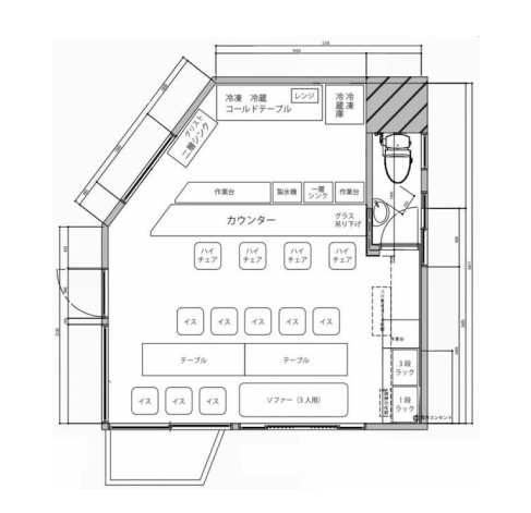
物件の現況 ダイニングバー 可能用途 指定あり 坪数 8.09坪
- 備考



















