物件ID:201063
情報公開日:2026年04月28日
情報更新日:2026年04月28日
立地
-
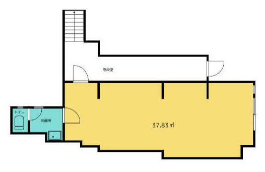
住所 東京都足立区綾瀬一丁目27-15 建物名/所在階 綾瀬1丁目複合ビル(仮称)/1階 最寄駅 東京メトロ千代田線綾瀬駅
徒歩4分近隣駅1 ー 近隣駅2 ー
費用/契約
-
造作価格 ー 賃料(坪単価) 210,000円(18,350円) 管理費/共益費(坪単価) ー(ー) 保証金/敷金 0ヶ月 / 6ヶ月 償却 0% 礼金 2ヶ月 更新料/再契約料 1ヶ月 その他費用 ー 仲介手数料 1ヶ月 その他手数料 ー 契約期間 3年 契約種別
用途
-
物件の現況 ー 可能用途 指定あり 坪数 11.44坪
- 備考
- 火災保険・保証会社加入要
フリーレント:賃料2か月分




















