物件ID:200855
情報公開日:2026年04月27日
情報更新日:2026年04月27日
立地
-
住所 埼玉県所沢市寿町21-17 建物名/所在階 本橋寿町ビル 2F/2階 最寄駅 西武池袋線所沢駅
徒歩9分近隣駅1 ー 近隣駅2 ー
費用/契約
-
造作価格 ー 賃料(坪単価) 440,000円(15,660円) 管理費/共益費(坪単価) 11,000円(391円) 保証金/敷金 ー / 3ヶ月 償却 ご相談 礼金 1ヶ月 更新料/再契約料 1ヶ月 その他費用 ー 仲介手数料 1ヶ月 その他手数料 ー 契約期間 3年 契約種別
用途
-
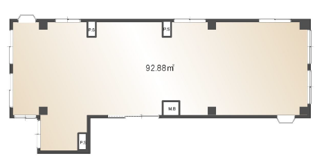
物件の現況 ー 可能用途 指定あり 坪数 28.10坪
- 備考




















