物件ID:200589
情報公開日:2026年04月24日
情報更新日:2026年04月27日
立地
-
住所 東京都墨田区両国二丁目13-8 建物名/所在階 両国駅前ビル/6階 最寄駅 JR中央・総武線両国駅
徒歩2分近隣駅1 都営大江戸線両国駅
徒歩2分近隣駅2 ー
費用/契約
-
造作価格 ー 賃料(坪単価) 471,600円(19,799円) 管理費/共益費(坪単価) ー(ー) 保証金/敷金 6ヶ月 / 0ヶ月 償却 ご相談 礼金 0ヶ月 更新料/再契約料 ー その他費用 ー 仲介手数料 1ヶ月 その他手数料 ー 契約期間 2年 契約種別
用途
-
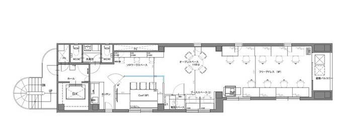
物件の現況 サービス(その他) 可能用途 指定あり 坪数 23.82坪
- 備考



















