物件ID:200559
情報公開日:2026年04月24日
情報更新日:2026年04月24日
立地
-
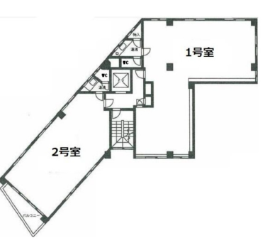
住所 東京都新宿区西新宿七丁目7-28 建物名/所在階 第二山本ビル 502/5階 最寄駅 東京メトロ丸ノ内線西新宿駅
徒歩3分近隣駅1 ー 近隣駅2 ー
費用/契約
-
造作価格 ー 賃料(坪単価) 351,472円(17,600円) 管理費/共益費(坪単価) 43,934円(2,200円) 保証金/敷金 0ヶ月 / 6ヶ月 償却 0% 礼金 1ヶ月 更新料/再契約料 1ヶ月 その他費用 ー 仲介手数料 1ヶ月 その他手数料 ー 契約期間 2年 契約種別
用途
-
物件の現況 サービス(その他) 可能用途 指定あり 坪数 19.97坪
- 備考



















