物件ID:200509
情報公開日:2026年04月23日
情報更新日:2026年04月23日
立地
-
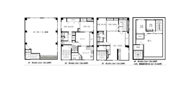
住所 東京都台東区浅草七丁目4-12 建物名/所在階 小宮/1~4階 最寄駅 東京メトロ銀座線浅草駅
徒歩9分近隣駅1 ー 近隣駅2 ー
費用/契約
-
造作価格 ー 賃料(坪単価) 770,000円(6,355円) 管理費/共益費(坪単価) ご相談(ご相談) 保証金/敷金 ー / 6ヶ月 償却 ご相談 礼金 1ヶ月 更新料/再契約料 ご相談 その他費用 ー 仲介手数料 1ヶ月 その他手数料 ー 契約期間 5年 契約種別 普通賃貸借
用途
-
物件の現況 サービス(その他) 可能用途 指定あり 坪数 121.16坪
- 備考



















