物件ID:200385
情報公開日:2026年04月22日
情報更新日:2026年04月22日
立地
-
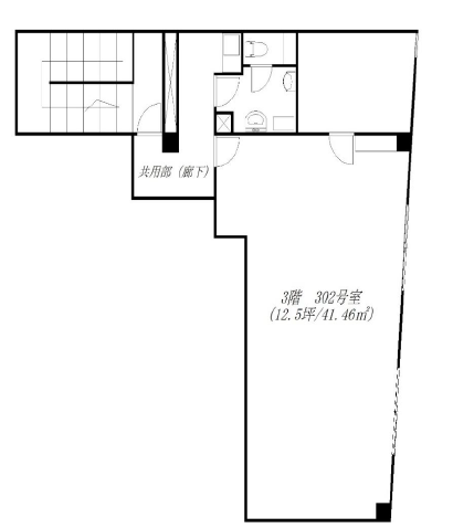
住所 東京都豊島区長崎四丁目7-11 建物名/所在階 大葱ビル/3階 最寄駅 西武池袋線東長崎駅
徒歩1分近隣駅1 ー 近隣駅2 ー
費用/契約
-
造作価格 ー 賃料(坪単価) 150,000円(12,000円) 管理費/共益費(坪単価) ー(ー) 保証金/敷金 0ヶ月 / 3ヶ月 償却 ご相談 礼金 1ヶ月 更新料/再契約料 ー その他費用 ー 仲介手数料 1ヶ月 その他手数料 ー 契約期間 2年 契約種別 普通賃貸借
用途
-
物件の現況 ー 可能用途 ご相談 坪数 12.50坪
- 備考
- 保証会社要加入要



















