物件ID:200314
情報公開日:2026年04月22日
情報更新日:2026年04月27日
立地
-
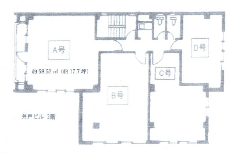
住所 東京都渋谷区神南一丁目13-4 建物名/所在階 井戸ビル 3FA/3階 最寄駅 JR山手線渋谷駅
徒歩7分近隣駅1 ー 近隣駅2 ー
費用/契約
-
造作価格 ー 賃料(坪単価) 345,150円(19,497円) 管理費/共益費(坪単価) 23,364円(1,319円) 保証金/敷金 8ヶ月 / 0ヶ月 償却 1ヶ月 礼金 1ヶ月 更新料/再契約料 ー その他費用 ー 仲介手数料 1ヶ月 その他手数料 ー 契約期間 2年 契約種別 普通賃貸借
用途
-
物件の現況 サービス(その他) 可能用途 指定あり 坪数 17.70坪
- 備考



















