物件ID:200108
情報公開日:2026年04月21日
情報更新日:2026年04月21日
立地
-
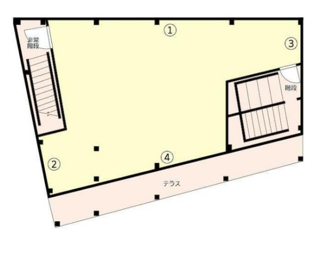
住所 東京都町田市原町田六丁目18-18 建物名/所在階 3階 最寄駅 小田急線町田駅
徒歩2分近隣駅1 ー 近隣駅2 ー
費用/契約
-
造作価格 ー 賃料(坪単価) 440,000円(11,886円) 管理費/共益費(坪単価) ー(ー) 保証金/敷金 20ヶ月 / ー 償却 10% 礼金 3ヶ月 更新料/再契約料 1ヶ月 その他費用 保証会社・火災保険加入要 仲介手数料 1ヶ月 その他手数料 ー 契約期間 3年 契約種別 普通賃貸借
用途
-
物件の現況 ー 可能用途 指定あり 坪数 37.02坪
- 備考
- 保証金3年内・再契約10%償却 以降3年で10%で日割償却、
更新時償却分補充
最上階



















