物件ID:200054
情報公開日:2026年04月21日
情報更新日:2026年04月21日
立地
-
住所 埼玉県さいたま市大宮区桜木町四丁目247 建物名/所在階 OSビル/2階 最寄駅 JR埼京線大宮駅
徒歩5分近隣駅1 JR京浜東北線大宮駅
徒歩5分近隣駅2 JR高崎線大宮駅
徒歩5分
費用/契約
-
造作価格 ー 賃料(坪単価) 2,267,900円(23,098円) 管理費/共益費(坪単価) ご相談(ご相談) 保証金/敷金 0ヶ月 / 6ヶ月 償却 ご相談 礼金 0ヶ月 更新料/再契約料 1ヶ月 その他費用 ー 仲介手数料 1ヶ月 その他手数料 ー 契約期間 2年 契約種別
用途
-
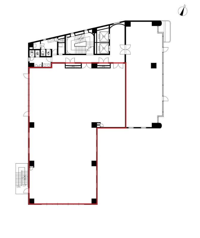
物件の現況 サービス(その他) 可能用途 指定あり 坪数 98.18坪
- 備考
- 駐車場有平置き:月額66,000円(税込)機械式:月額30,000






















