物件ID:199601
情報公開日:2026年04月16日
情報更新日:2026年04月16日
立地
-
住所 神奈川県川崎市宮前区南野川二丁目48-20 建物名/所在階 南野川ビル/1~3階 最寄駅 グリーンライン東山田駅
徒歩24分近隣駅1 グリーンライン北山田駅
徒歩25分近隣駅2 ー
費用/契約
-
造作価格 ー 賃料(坪単価) 1,980,000円(8,734円) 管理費/共益費(坪単価) ー(ー) 保証金/敷金 3ヶ月 / ー 償却 20% 礼金 1ヶ月 更新料/再契約料 1ヶ月 その他費用 保険加入要 鍵交換代:55,000円 仲介手数料 1ヶ月 その他手数料 ー 契約期間 5年 契約種別 普通賃貸借
用途
-
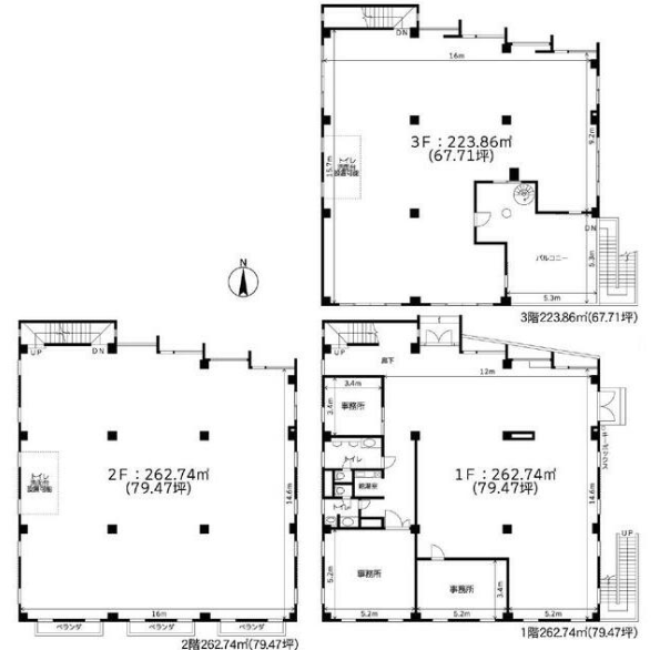
物件の現況 ー 可能用途 ご相談 坪数 226.68坪
- 備考
- 口座引落手数料:330円/月 プロパンガス 駐車場の間口22m
駐車スペース10台前後駐車可/大型トラックも駐車可(無料) トイレ
バイク置き場・駐輪場無料 内装の造作工事ご相談可能 土日祝利用可


























