物件ID:199300
情報公開日:2026年04月14日
情報更新日:2026年04月15日
立地
-
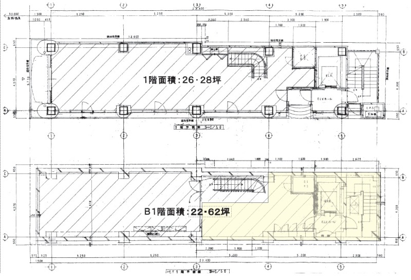
住所 東京都渋谷区渋谷三丁目7-1 建物名/所在階 高山ランドビル第12ビル/地下1~1階 最寄駅 JR山手線渋谷駅
徒歩3分近隣駅1 ー 近隣駅2 ー
費用/契約
-
造作価格 ー 賃料(坪単価) 2,200,000円(44,989円) 管理費/共益費(坪単価) ー(ー) 保証金/敷金 12ヶ月 / ー 償却 20% 礼金 1ヶ月 更新料/再契約料 1ヶ月 その他費用 看板警備料20,000円 消費税別途 仲介手数料 1ヶ月 その他手数料 ー 契約期間 ー 契約種別 普通賃貸借
用途
-
物件の現況 ー 可能用途 指定あり 坪数 48.90坪
- 備考
- 定期借家契約
保証会社(当社指定有)要加入
飲食不可(ガスなし、用途変更などで高額費用が掛かるため)



















