物件ID:197089
情報公開日:2026年03月30日
情報更新日:2026年03月30日
立地
-
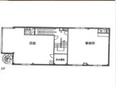
住所 東京都新宿区住吉町9-8 建物名/所在階 2階 最寄駅 都営新宿線曙橋駅
徒歩4分近隣駅1 ー 近隣駅2 ー
費用/契約
-
造作価格 ー 賃料(坪単価) 380,000円(23,288円) 管理費/共益費(坪単価) ー(ー) 保証金/敷金 6ヶ月 / ー 償却 22% 礼金 1ヶ月 更新料/再契約料 ー その他費用 ー 仲介手数料 1ヶ月 その他手数料 ー 契約期間 3年 契約種別
用途
-
物件の現況 サービス(その他) 可能用途 指定あり 坪数 16.32坪
- 備考




















