物件ID:197083
情報公開日:2026年03月30日
情報更新日:2026年03月30日
立地
-
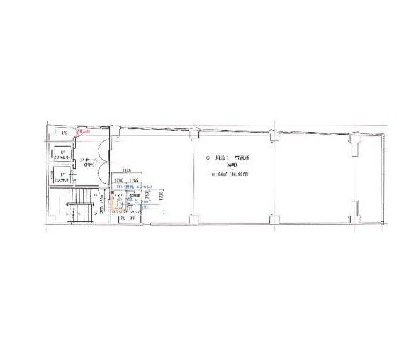
住所 東京都立川市曙町二丁目6-10 建物名/所在階 N8(エヌエイト)5F/5階 最寄駅 JR青梅線立川駅
徒歩2分近隣駅1 ー 近隣駅2 ー
費用/契約
-
造作価格 ー 賃料(坪単価) 1,320,000円(26,962円) 管理費/共益費(坪単価) 132,000円(2,696円) 保証金/敷金 0 / 10ヶ月 償却 ご相談 礼金 1ヶ月 更新料/再契約料 ー その他費用 ー 仲介手数料 1ヶ月 その他手数料 ー 契約期間 10年 契約種別
用途
-
物件の現況 エステ・マッサージ・サロン 可能用途 指定あり 坪数 48.96坪
- 備考
- ※下記出店不可業種
内科・アレルギ−科、補聴器販売、婦⼈科・乳腺外科、⽪膚科・⼩児科
まつげエクステ



















