物件ID:196944
情報公開日:2026年03月28日
情報更新日:2026年03月28日
立地
-
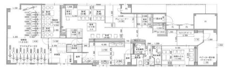
住所 東京都練馬区貫井三丁目4 建物名/所在階 ブランシカ練馬富士見台/1階 最寄駅 西武池袋線富士見台駅
徒歩3分近隣駅1 ー 近隣駅2 ー
費用/契約
-
造作価格 ー 賃料(坪単価) 900,000円(15,738円) 管理費/共益費(坪単価) ー(ー) 保証金/敷金 7ヶ月 / ー 償却 ご相談 礼金 1ヶ月 更新料/再契約料 1ヶ月 その他費用 ー 仲介手数料 1ヶ月 その他手数料 ー 契約期間 7年 契約種別 普通賃貸借
用途
-
物件の現況 カフェ 可能用途 ご相談 坪数 57.18坪
- 備考





















