物件ID:196943
情報公開日:2026年03月28日
情報更新日:2026年03月31日
立地
-
住所 東京都北区赤羽一丁目13-7 建物名/所在階 はやまビル/地下1~1階 最寄駅 JR埼京線赤羽駅
徒歩1分近隣駅1 JR京浜東北線赤羽駅
徒歩1分近隣駅2 宇都宮線赤羽駅
徒歩1分
費用/契約
-
造作価格 ー 賃料(坪単価) 1,760,000円(38,260円) 管理費/共益費(坪単価) 165,000円(3,586円) 保証金/敷金 6ヶ月 / 0ヶ月 償却 0% 礼金 2ヶ月 更新料/再契約料 1ヶ月 その他費用 ー 仲介手数料 1ヶ月 その他手数料 ー 契約期間 5年 契約種別
用途
-
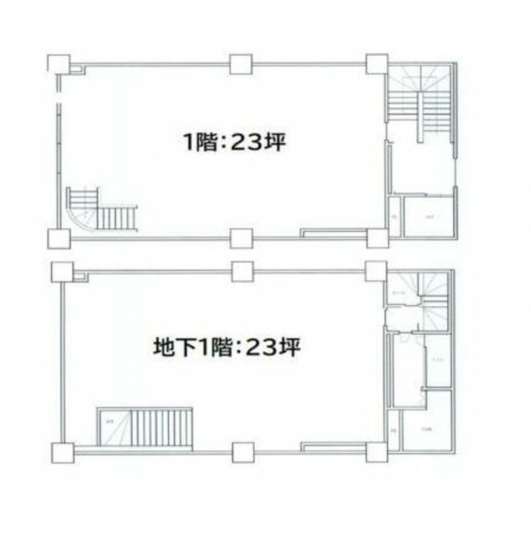
物件の現況 サービス(その他) 可能用途 指定あり 坪数 46.00坪
- 備考
- 飲食店不可 1フロア1テナント 居抜き 24時間利用可
テナント内階段
バス停目の前の好立地




















