物件ID:196393
情報公開日:2026年03月24日
情報更新日:2026年03月24日
立地
-
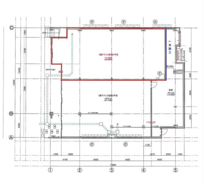
住所 埼玉県川口市並木二丁目1-14 建物名/所在階 並木サンケイビル/1階 最寄駅 JR京浜東北線西川口駅
徒歩1分近隣駅1 ー 近隣駅2 ー
費用/契約
-
造作価格 ー 賃料(坪単価) 1,000,296円(29,697円) 管理費/共益費(坪単価) ー(ー) 保証金/敷金 6ヶ月 / 0ヶ月 償却 1% 礼金 1ヶ月 更新料/再契約料 1ヶ月 その他費用 ー 仲介手数料 1ヶ月 その他手数料 ー 契約期間 3年 契約種別 普通賃貸借
用途
-
物件の現況 ー 可能用途 何業も可 坪数 33.68坪
- 備考























